
Wynajem
1 / 5





Magazyn 280 m2 z rampą, placem dla TIR
RZESZÓW
8960 zł32 zł/m²
Szczegóły
Powierzchnia280 m²
RodzajMieszkanie
Opis ogłoszenia
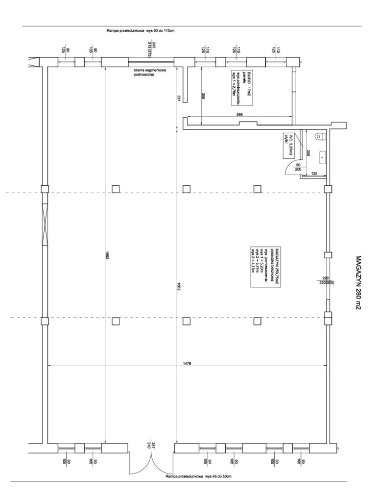
Biuro Nieruchomości Pierwsze Piętro, prezentuje na wynajem magazyn z rampą, powierzchnią biurową i toaletą o powierzchni całkowitej 280 m2 w strefie przemysłowej w Rzeszowie. Okolice ulic Przemysłowej i Boya-Żeleńskiego. Plac dla samochodów ciężarowych, wjazd i wyjazd. Teren monitorowany. Magazyn dostępny od zaraz.
Opis nieruchomości:
- powierzchnia 280 m2
- w skład lokalu wchodzi: open space - 259,75 m2, biuro - 17 m2 , WC - 3,25 m2
- wysokość 4,13 m-5,3 m
- wysoki parter
- 2 rampy przeładunkowe
- brama segemntowa podnoszona
- brak ogrzewania
Atuty nieruchomości:
- bardzo dobra lokalizacja w strefie przemysłowej
- łatwy dojazd do obwodnicy i drogi ekspresowej
- dojazd drogą asfaltową
- plac manewrowy dla samochodów ciężarkowych
- wjazd i wyjazd
- posadzka przemysłowa, betonowa
- dużo miejsc postojowych
- możliwość dodatkowego składowania/parkowania na zewnątrz
Cena najmu nieruchomości:
- 8 960,00 zł + VAT - magzyn
- opłaty eksploatacyjne według zużycia
- kaucja zwrotna w wysokości dwukrotności odstępnego brutto
Zapraszam na prezentacje za pośrednictwo pobieramy wynagrodzenie.
Gabriela Mucha
Nr licencji PFRN 30042 oraz 31296
tel. 781 483 383
gabriela@1pietro.net
Numer propozycji: GM 329
Biuro Nieruchomości
Pierwsze Piętro
al. Okulickiego 12
35-222 Rzeszów 280 ??. , . - , ' . . :
- 280 ?2
- : - 259,75 ?2, - 17 ?2, - 3,25 ?2
- 4,13 ?-5,3 ?
- - 2 - - :
- - - ' - - - , - - / :
- 8960,00 ?? + - - - , . PFRN 30042 ?? 31296 . 781 483 383 @1pietro.net : GM 329 , 12
35-222 First Floor Real Estate Agency presents a 280 sq m warehouse for rent with a ramp, office space, and restroom in the industrial zone of Rzeszów. Located near Przemysłowa and Boya-Żeleńskiego Streets, it features a truck yard with entry and exit. The premises are monitored and available immediately.
Property description:
- area 280 m2
- the premises include: open space - 259.75 m2, office - 17 m2, toilet - 3.25 m2
- height 4.13 m-5.3 m
- high ground floor
- 2 loading ramps
- lifting sectional door
- no heating
Advantages of the property:
- very good location in the industrial zone
- easy access to the ring road and expressway
- access via asphalt road
- maneuvering area for trucks
- entry and exit
- industrial, concrete floor
- lots of parking spaces
- possibility of additional storage/parking outside
Property rental price:
- PLN 8,960.00 + VAT - warehouse
- operating fees based on consumption
- refundable deposit in the amount of twice the gross transfer fee
I invite you to presentations, we charge a fee for mediation.
Gabriela Mucha
PFRN license numbers 30042 and 31296
tel. 781 483 383
gabriela@1pietro.net
Proposal number: GM 329
Real Estate Office
First Floor
Okulickiego Avenue 12
35-222 Rzeszów
Kontakt:
Gabriela Mucha
tel: 781 483 383
gabriela@1pietro.net
10 % rabatu na zakupy w Merkury Market dla naszych Klientów
Niniejsze ogłoszenie nie stanowi oferty w rozumieniu przepisów kodeksu cywilnego oraz innych właściwych przepisów prawnych, a dane w niej zawarte mają jedynie charakter informacyjny.
Opis nieruchomości:
- powierzchnia 280 m2
- w skład lokalu wchodzi: open space - 259,75 m2, biuro - 17 m2 , WC - 3,25 m2
- wysokość 4,13 m-5,3 m
- wysoki parter
- 2 rampy przeładunkowe
- brama segemntowa podnoszona
- brak ogrzewania
Atuty nieruchomości:
- bardzo dobra lokalizacja w strefie przemysłowej
- łatwy dojazd do obwodnicy i drogi ekspresowej
- dojazd drogą asfaltową
- plac manewrowy dla samochodów ciężarkowych
- wjazd i wyjazd
- posadzka przemysłowa, betonowa
- dużo miejsc postojowych
- możliwość dodatkowego składowania/parkowania na zewnątrz
Cena najmu nieruchomości:
- 8 960,00 zł + VAT - magzyn
- opłaty eksploatacyjne według zużycia
- kaucja zwrotna w wysokości dwukrotności odstępnego brutto
Zapraszam na prezentacje za pośrednictwo pobieramy wynagrodzenie.
Gabriela Mucha
Nr licencji PFRN 30042 oraz 31296
tel. 781 483 383
gabriela@1pietro.net
Numer propozycji: GM 329
Biuro Nieruchomości
Pierwsze Piętro
al. Okulickiego 12
35-222 Rzeszów 280 ??. , . - , ' . . :
- 280 ?2
- : - 259,75 ?2, - 17 ?2, - 3,25 ?2
- 4,13 ?-5,3 ?
- - 2 - - :
- - - ' - - - , - - / :
- 8960,00 ?? + - - - , . PFRN 30042 ?? 31296 . 781 483 383 @1pietro.net : GM 329 , 12
35-222 First Floor Real Estate Agency presents a 280 sq m warehouse for rent with a ramp, office space, and restroom in the industrial zone of Rzeszów. Located near Przemysłowa and Boya-Żeleńskiego Streets, it features a truck yard with entry and exit. The premises are monitored and available immediately.
Property description:
- area 280 m2
- the premises include: open space - 259.75 m2, office - 17 m2, toilet - 3.25 m2
- height 4.13 m-5.3 m
- high ground floor
- 2 loading ramps
- lifting sectional door
- no heating
Advantages of the property:
- very good location in the industrial zone
- easy access to the ring road and expressway
- access via asphalt road
- maneuvering area for trucks
- entry and exit
- industrial, concrete floor
- lots of parking spaces
- possibility of additional storage/parking outside
Property rental price:
- PLN 8,960.00 + VAT - warehouse
- operating fees based on consumption
- refundable deposit in the amount of twice the gross transfer fee
I invite you to presentations, we charge a fee for mediation.
Gabriela Mucha
PFRN license numbers 30042 and 31296
tel. 781 483 383
gabriela@1pietro.net
Proposal number: GM 329
Real Estate Office
First Floor
Okulickiego Avenue 12
35-222 Rzeszów
Kontakt:
Gabriela Mucha
tel: 781 483 383
gabriela@1pietro.net
10 % rabatu na zakupy w Merkury Market dla naszych Klientów
Niniejsze ogłoszenie nie stanowi oferty w rozumieniu przepisów kodeksu cywilnego oraz innych właściwych przepisów prawnych, a dane w niej zawarte mają jedynie charakter informacyjny.