
Wynajem
1 / 4




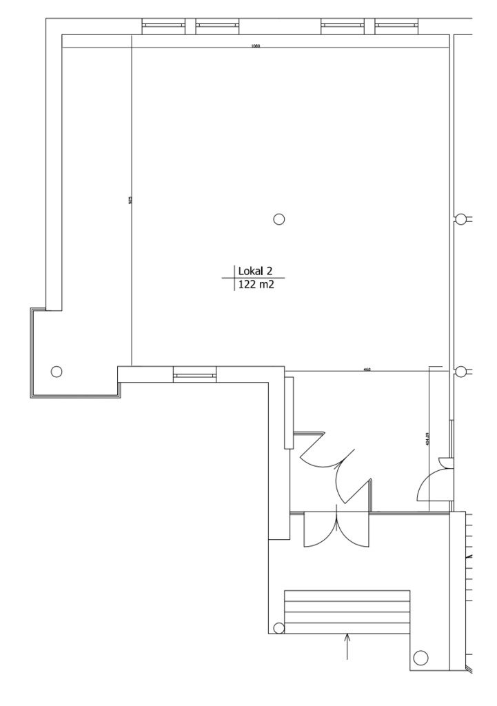
Ekskluzywny, jasny lokal 122 m2 Mieszka I
RZESZÓW, ul. Mieszka I
8418 zł69 zł/m²
Szczegóły
Powierzchnia122 m²
PiętroParter
RodzajLokal użytkowy
Opis ogłoszenia
Biuro Nieruchomości Pierwsze Piętro prezentuje na wynajem nowoczesny lokal usługowy na parterze o powierzchni 122 m2.
Nieruchomość zlokalizowana jest przy ulicy Mieszka I w Rzeszowie. Lokal sprawdzi się pod działalność: atelier, biuro nieruchomość, kancelarię czy biuro rachunkowe.
Opis nieruchomość:
- lokal o powierzchni 122 m2
- open space
- parter / nowoczesne budownictwo
- 2 toalety ogólnodostępne w budynku oraz kuchnia
- ogrzewanie z sieci miejskiej
- parking ogólnodostępny bezpłatny przy lokalu
Atuty nieruchomości:
- lokal dostępny od zaraz
- bardzo dobra lokalizacja
- nowoczesne budownictwo, gotowe do wejścia
- dostęp do lokalu całodobowy
- dwa wejścia do lokalu
- alarm
- klimatyzacja, rekuperacja
- witryna, możliwość zamieszczenia reklamy zewnętrznej
Cena nieruchomości:
8 418 zł netto + media
- energia i woda ustalane indywidualnie w zależności od rodzaju działalności
- energia części wspólnych ? ok. 90 zł/ miesięczni
- śmieci -146,40 zł (1,20/m2) miesięcznie
- ogrzewanie stałe- 233 zł miesięcznie
- ogrzewanie zmienne opłata tylko w sezonie grzewczym ok 800-1000 zł miesięcznie
Zapraszam na prezentację, za pośrednictwo pobieramy wynagrodzenie.
Gabriela Mucha
Nr licencji PFRN 30042 oraz 31296
tel. 781 483 383
gabriela@1pietro.net
Numer propozycji: GM 268
Biuro Nieruchomości
Pierwsze Piętro
al. Okulickiego 12
35-222 Rzeszów Pierwsze Piętro 122 ?2. I . : , , . :
- 122 ?2
- - / - 2 - - :
- - - , - - - - , - , :
8418 + - - - ??. 90 / - -146,40 (1,20/?2) - - 233 - , , ??. 800-1000 , . PFRN ? 30042 ? 31296 . 781 483 383
gabriela@1pietro.net : GM 268 al. Okulickiego 12
35-222 The First Floor Real Estate Agency presents a modern commercial premises for rent on the ground floor with an area of 122 m2.
The property is located at Mieszka I Street in Rzeszów . The premises will be suitable for the following activities: studio, real estate office, law firm or accounting office.
Property description:
- premises with an area of 122 m2
- open space
- ground floor / modern construction
- 2 public toilets in the building and a kitchen
- heating from the municipal network
- free public parking at the premises
Advantages of the property:
- premises available immediately
- very good location
- modern construction, ready to move in
- 24/7 access to the premises
- two entrances to the premises
-alarm
- air conditioning, recuperation
- shop window, possibility of placing outdoor advertising
Property price:
PLN 8,418 net + utilities
- energy and water determined individually depending on the type of activity
- energy for common areas - approx. PLN 90/month
- garbage -146.40 PLN (1.20/m2) per month
- permanent heating - PLN 233 per month
- variable heating, fee only during the heating season, approx. PLN 800-1000 per month
I invite you to a presentation, we charge a fee for mediation.
Gabriela Mucha
PFRN license no. 30042 and 31296
tel. 781 483 383
gabriela@1pietro.net
Proposal number: GM 268
Real Estate Office
First Floor
Okulickiego 12
35-222 Rzeszow
Kontakt:
Gabriela Mucha
tel: 781 483 383
gabriela@1pietro.net
10 % rabatu na zakupy w Merkury Market dla naszych Klientów
Niniejsze ogłoszenie nie stanowi oferty w rozumieniu przepisów kodeksu cywilnego oraz innych właściwych przepisów prawnych, a dane w niej zawarte mają jedynie charakter informacyjny.
Nieruchomość zlokalizowana jest przy ulicy Mieszka I w Rzeszowie. Lokal sprawdzi się pod działalność: atelier, biuro nieruchomość, kancelarię czy biuro rachunkowe.
Opis nieruchomość:
- lokal o powierzchni 122 m2
- open space
- parter / nowoczesne budownictwo
- 2 toalety ogólnodostępne w budynku oraz kuchnia
- ogrzewanie z sieci miejskiej
- parking ogólnodostępny bezpłatny przy lokalu
Atuty nieruchomości:
- lokal dostępny od zaraz
- bardzo dobra lokalizacja
- nowoczesne budownictwo, gotowe do wejścia
- dostęp do lokalu całodobowy
- dwa wejścia do lokalu
- alarm
- klimatyzacja, rekuperacja
- witryna, możliwość zamieszczenia reklamy zewnętrznej
Cena nieruchomości:
8 418 zł netto + media
- energia i woda ustalane indywidualnie w zależności od rodzaju działalności
- energia części wspólnych ? ok. 90 zł/ miesięczni
- śmieci -146,40 zł (1,20/m2) miesięcznie
- ogrzewanie stałe- 233 zł miesięcznie
- ogrzewanie zmienne opłata tylko w sezonie grzewczym ok 800-1000 zł miesięcznie
Zapraszam na prezentację, za pośrednictwo pobieramy wynagrodzenie.
Gabriela Mucha
Nr licencji PFRN 30042 oraz 31296
tel. 781 483 383
gabriela@1pietro.net
Numer propozycji: GM 268
Biuro Nieruchomości
Pierwsze Piętro
al. Okulickiego 12
35-222 Rzeszów Pierwsze Piętro 122 ?2. I . : , , . :
- 122 ?2
- - / - 2 - - :
- - - , - - - - , - , :
8418 + - - - ??. 90 / - -146,40 (1,20/?2) - - 233 - , , ??. 800-1000 , . PFRN ? 30042 ? 31296 . 781 483 383
gabriela@1pietro.net : GM 268 al. Okulickiego 12
35-222 The First Floor Real Estate Agency presents a modern commercial premises for rent on the ground floor with an area of 122 m2.
The property is located at Mieszka I Street in Rzeszów . The premises will be suitable for the following activities: studio, real estate office, law firm or accounting office.
Property description:
- premises with an area of 122 m2
- open space
- ground floor / modern construction
- 2 public toilets in the building and a kitchen
- heating from the municipal network
- free public parking at the premises
Advantages of the property:
- premises available immediately
- very good location
- modern construction, ready to move in
- 24/7 access to the premises
- two entrances to the premises
-alarm
- air conditioning, recuperation
- shop window, possibility of placing outdoor advertising
Property price:
PLN 8,418 net + utilities
- energy and water determined individually depending on the type of activity
- energy for common areas - approx. PLN 90/month
- garbage -146.40 PLN (1.20/m2) per month
- permanent heating - PLN 233 per month
- variable heating, fee only during the heating season, approx. PLN 800-1000 per month
I invite you to a presentation, we charge a fee for mediation.
Gabriela Mucha
PFRN license no. 30042 and 31296
tel. 781 483 383
gabriela@1pietro.net
Proposal number: GM 268
Real Estate Office
First Floor
Okulickiego 12
35-222 Rzeszow
Kontakt:
Gabriela Mucha
tel: 781 483 383
gabriela@1pietro.net
10 % rabatu na zakupy w Merkury Market dla naszych Klientów
Niniejsze ogłoszenie nie stanowi oferty w rozumieniu przepisów kodeksu cywilnego oraz innych właściwych przepisów prawnych, a dane w niej zawarte mają jedynie charakter informacyjny.